全国 田舎暮らし物件 > 山形県 > 住みよい・ほどよい・田舎まち、田畑庭園付きの茅葺き古民家
山形県 天童市 [古民家]
物件No.18335T
住みよい・ほどよい・田舎まち、田畑庭園付きの茅葺き古民家1500万円
この物件について問い合わせるしつこい営業は一切致しませんので、安心してお問い合わせください。
現地へのご案内や、ネットでは公開していない詳細情報をお知らせします。
現地へのご案内や、ネットでは公開していない詳細情報をお知らせします。
山形県天童市はラ・フランスや将棋駒の生産量が日本一を誇る市町村で、山形市中心部や山形空港に隣接していることから、山形県では街の住みここちランキング第1位となった実績もある移住者には人気の市町村。お隣仙台市を結ぶ国道48号線から少し離れた農村部の一角にあるのが今回の物件。建物は18世紀後期に建築されたと推定される旧家で、屋根は正真正銘の立派な茅葺き古民家。敷地は里山に調和した広い庭園と家庭菜園、田1枚がセットになっている。調整区域のため民泊や旅館は出来ないが、室内リフォームにしっかり費用をかけられる方には、是非一度現地を訪れて頂きたい歴史的建造物だ。
【オンライン見学はこちらから】
→ここをクリック
| 物件No. | 18335T |
|---|---|
| 所在地 | 山形県天童市山口二子沢 |
| 種別 | 古民家 |
| 地目 | 宅地、田、畑、田 |
| 地勢 | 平坦地 |
| 土地面積 | 4751.12㎡ (1437.21坪) |
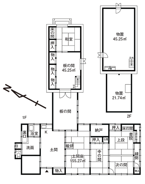
| 建物面積 | 157.04㎡ (47.5坪) |
| 建物構造 | 木造草葺平家建 |
| 築年 | 不詳 |
| 床面積1階 | 157.04㎡ (47.5坪) |
| 接道状況 | 南西側が幅約6m、北東側が幅約6mの舗装公道に接する |
| 都市計画 | 区域内 市街化調整区域 |
| 建ぺい率 | 70% |
| 容積率 | 200% |
| 法令 | 土砂災害警戒区域、農地法、農振法(青地)、山形県景観条例 |
| 標高 | 145m |
| 設備 | 電気、公営水道、汲み取り(公共下水接続可)、PG |
| 交通 | 奥羽本線(山形線)乱川駅より約4.2km、山形新幹線天童駅より約5.1km、東北中央道天童ICより約6.9km、山形空港より約7.2km |
| 生活 | ヨークベニマルへ約3.5km、セブンイレブンへ約2.8km、病院へ約2.8km、DCMへ約3.5km、道の駅へ約4.3km、天童温泉街へ約4.1km、市役所へ約4.4km |
| 備考 | 附属建物:①倉庫 木造亜鉛メッキ鋼板葺平家建 1階10.91㎡ 築年不詳、②居宅 土蔵造亜鉛メッキ鋼板葺2階建 1階48.16㎡ 2階48.16㎡ 延96.32㎡ 大正6年築、③物置 木造亜鉛メッキ鋼板葺平家建 1階10.91㎡ 平成3年築 |
| 備考2 | 敷地内の買取可能の残置物は売主負担で撤去した上で引渡し予定。 |
情報更新日:2026/02/14
この物件について問い合わせる
しつこい営業は一切致しませんので、安心してお問い合わせください。
現地へのご案内手配や、ネットでは公開していない詳細情報・ご質問事項をお答えいたします。
(※ご見学前に特別にお送りする資料等はご用意しておりませんのでご了承ください)
現地へのご案内手配や、ネットでは公開していない詳細情報・ご質問事項をお答えいたします。
(※ご見学前に特別にお送りする資料等はご用意しておりませんのでご了承ください)
※掲載されている図面・データが現況と異なる場合は、現況を優先します。























































