全国 田舎暮らし物件 > 岩手県 > 自分らしく作り変える楽しみ、趣味、仕事に活用したい物置付き
岩手県 遠野市 [住宅]
物件No.18246C
自分らしく作り変える楽しみ、趣味、仕事に活用したい物置付き280万円
この物件について問い合わせるしつこい営業は一切致しませんので、安心してお問い合わせください。
現地へのご案内や、ネットでは公開していない詳細情報をお知らせします。
現地へのご案内や、ネットでは公開していない詳細情報をお知らせします。
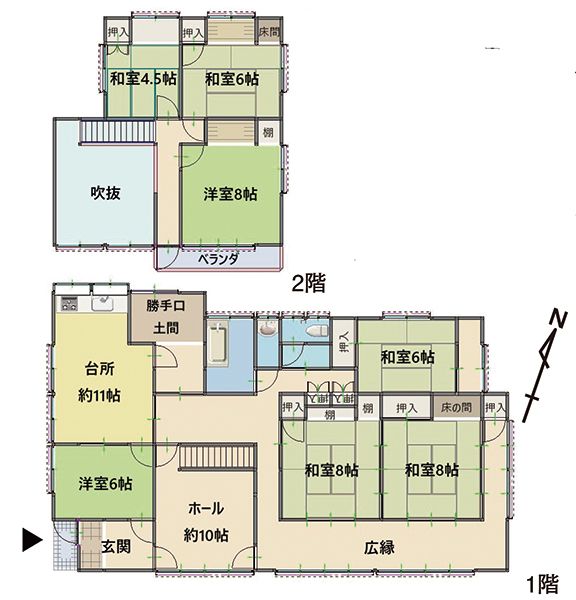
佐比内鉄鉱山から吹き下りる爽やかな風が吹き抜ける佐比内集落。築42年の昭和の懐かしい全室畳敷、塗壁の文化住宅だ。各部屋は広々としており使いやすい。在来工法の躯体はしっかりしている。ただ、設備、内外装は大々的に改修しなければならない状況。その辺りは自分である程度できる方なら、自分らしく好きなように良いだろう。対照的に西側に建つ物置の状態は良く、仕事、趣味はもちろん、機械いじりなどに使え、物置としてはもったいない。こちらを住宅に改装し、母屋は解体撤去するのも一つの考えだ。そうすれば陽当りの良い部分が広がり明るくなり、菜園用地も拡大できる。魅力的な価格の住宅は如何に活かすか、あなた次第だ。
| 物件No. | 18246C |
|---|---|
| 所在地 | 岩手県遠野市上郷町佐比内23地割 |
| 種別 | 住宅 |
| 地目 | 宅地、宅地、原野 |
| 地勢 | 平坦地 |
| 土地面積 | 734.11㎡ (222.06坪) |
| 建物面積 | 115.93㎡ (35.06坪) |
| 建物構造 | 木造亜鉛メッキ鋼板葺平家建 |
| 築年 | 昭和58年 |
| 床面積1階 | 115.93㎡ (35.06坪) |
| 接道状況 | 東側が幅約5.0mの舗装公道、北側が幅約2.5mの未舗装公道に接する。 |
| 都市計画 | 区域内 非線引区域 |
| 用途地域 | 無指定地域 |
| 建ぺい率 | 70% |
| 容積率 | 200% |
| 法令 | ため池浸水地域 |
| 標高 | 400m |
| 設備 | 電気、公営水道、汲み取り、PG |
| 交通 | 釜石線岩手上郷駅より約2.4km、遠野駅より約9.7km、釜石道遠野住田ICより約4.0km |
| 生活 | スーパービッグハウス遠野店へ約8.3km、キクコーストア遠野バイパス店へ約8.9km、県立遠野病院へ約9.2km、国保中央診療所へ約10.1km、コメリホームセンター遠野店へ約8.8km、岩手上郷郵便局へ約2.2km、道の駅遠野風の丘へ約13.1km、市役所へ約29.1km |
| 備考 | 物置 木造亜鉛メッキ鋼板葺平家建 33.12㎡(10.01坪) 平成1年築 固定資産税30,300円 |
情報更新日:2025/11/27
この物件について問い合わせる
しつこい営業は一切致しませんので、安心してお問い合わせください。
現地へのご案内手配や、ネットでは公開していない詳細情報・ご質問事項をお答えいたします。
(※ご見学前に特別にお送りする資料等はご用意しておりませんのでご了承ください)
現地へのご案内手配や、ネットでは公開していない詳細情報・ご質問事項をお答えいたします。
(※ご見学前に特別にお送りする資料等はご用意しておりませんのでご了承ください)
※掲載されている図面・データが現況と異なる場合は、現況を優先します。

























