田舎暮らし物件
全国 田舎暮らし物件 > 岡山県 > 歴史情緒あふれる県北の雄都に佇む、駅チカ好立地の蔵と車庫付き木造家屋
岡山県 津山市 [民家]  物件No.18279T

歴史情緒あふれる県北の雄都に佇む、駅チカ好立地の蔵と車庫付き木造家屋550万円

この物件について問い合わせる
しつこい営業は一切致しませんので、安心してお問い合わせください。
現地へのご案内や、ネットでは公開していない詳細情報をお知らせします。
物件正面画像

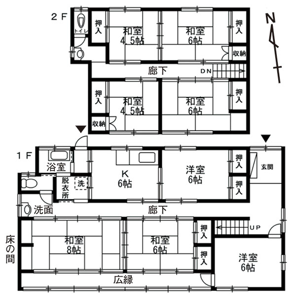
配置図(※クリックすると大きく表示されます)

  • 岡山県第三の都市に数えられる津山市は、古くから津山藩の城下町として発達し、ご当地グルメや観光産業に力を入れているため全国的な知名度も高い街。また自然災害もこれまでほとんど発生していないことから、「晴れの国おかやま」の中でも移住者に注目されており、就労・子育て・生活面でも安心して暮らせる環境が整っている。今回の物件は津山駅から徒歩10分で辿り着く好立地で、吉井川を渡ると商業施設も点在するため、普段の買い物は自転車でも完結出来る。母屋は築55年超の日本家屋で、屋根や躯体はしっかりしているため、水回りを中心に手を加えることでより快適に利用出来る状態だ。

    物件No. 18279T
    所在地 岡山県津山市横山ウガ
    種別 民家
    地目 宅地
    地勢 平坦地
    土地面積 404.98㎡  (122.5坪)
    建物面積 181.59㎡  (54.93坪)
    建物構造 木造瓦葺2階建
    築年 昭和42年
    床面積1階 117.39㎡  (35.51坪)
    床面積2階 64.2㎡  (19.42坪)
    接道状況 北側が幅約4mの舗装公道に接する
    都市計画 区域内 非線引区域
    用途地域 第一種住居地域
    建ぺい率 60%
    容積率 200%
    法令 津山市景観条例
    標高 91m
    設備 電気、公営水道、簡易水洗(汲み取り)、PG
    交通 姫新線津山駅より約750m、中国道津山ICより約5.5km、院庄ICより約6.1km、岡山空港より約51.4km
    生活 ゆめマートへ約1.2km、Tローソンへ約600m、記念病院へ約1.4km、津山城鶴山公園へ約1.6km、津山文化センターへ約1.7km、市役所へ約2.3km、湯郷温泉へ約18.5km、奥津峡へ約26.5km、蒜山高原へ約57km。
    備考 その他附属建物として、木造瓦葺2階建の土蔵(1階20㎡、2階20㎡)と未登記の倉庫あり。
    備考2 令和7年度固定資産税43,500円、都市計画税12,700円。洪水浸水想定区域(0.5-3.0m未満)。下水整備エリア外のため合併浄化槽への転換を推奨。

    情報更新日:2025/10/15

    物件ギャラリー

    (※物件ギャラリー内の縦写真はクリックすると正しく表示されます)

    この物件について問い合わせる
    しつこい営業は一切致しませんので、安心してお問い合わせください。
    現地へのご案内手配や、ネットでは公開していない詳細情報・ご質問事項をお答えいたします。
    (※ご見学前に特別にお送りする資料等はご用意しておりませんのでご了承ください)

    他の物件を見る

    全国物件データファイル > 岡山県

    ※掲載されている図面・データが現況と異なる場合は、現況を優先します。