全国 田舎暮らし物件 > 山梨県 > 雄大な山々の景色を楽しむ 瀟洒なリゾートマンション
山梨県 高根町 [住宅]
物件No.18330Y
雄大な山々の景色を楽しむ 瀟洒なリゾートマンション 1480万円
この物件について問い合わせるしつこい営業は一切致しませんので、安心してお問い合わせください。
現地へのご案内や、ネットでは公開していない詳細情報をお知らせします。
現地へのご案内や、ネットでは公開していない詳細情報をお知らせします。
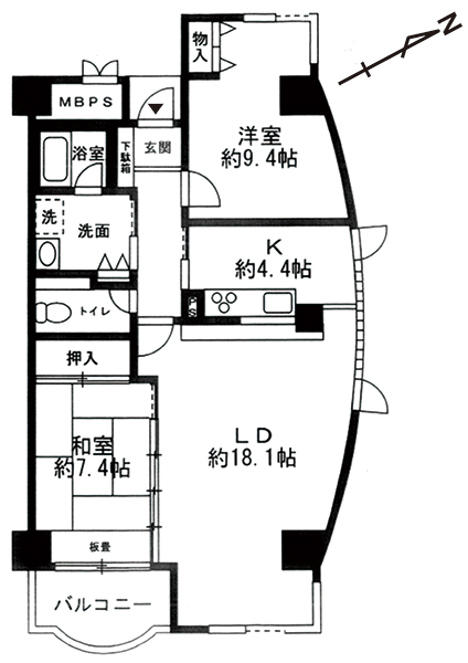
配置図(※クリックすると大きく表示されます)
北杜市高根町にあるマンション「スターガーデン八ヶ岳高原」。国道141号線よりわずかに入った場所に位置する。周囲には畑があり、また高い建物がないため見晴らしがいい。当初は、リゾートマンションとして建てられたものだが、現在は60戸ある部屋の約半数は定住している。本物件は、4階の角部屋にある2LDK。数年前にリビングと和室のクロスの張替え、キッチンのリフォームをしている。マンションには、コインランドリー、ジム、カラオケルーム、図書室が併設。管理人が従事しており、管内は綺麗に保たれている。インター、ス-パーなどからもアクセスがよく、二拠点での利用はもちろん、定住希望の方にもおすすめ。
| 物件No. | 18330Y |
|---|---|
| 所在地 | 山梨県北杜市高根町村山東割矢捨 |
| 種別 | 住宅 |
| 地目 | 山林 |
| 地勢 | 平坦地 |
| 土地面積 | 1857㎡ (561.74坪) |
| 建物面積 | 81.3㎡ (24.59坪) |
| 建物構造 | RC造陸屋根7階建 |
| 築年 | 平成4年 |
| 床面積3階・その他 | 81.3㎡ (24.59坪) |
| 接道状況 | 北側が幅約5mの舗装公道に接する。 |
| 都市計画 | 区域外 |
| 建ぺい率 | 50% |
| 容積率 | 100% |
| 法令 | 北杜市まちづくり条例 |
| 設備 | 電気、公営水道、集中浄化槽、IH |
| 交通 | 中央本線長坂駅より約7.3km、中央道長坂ICより約4.8km 車で9分 |
| 生活 | 高根総合支所、コンビニ、郵便局へ約2.1~2.6km、小学校へ約1.6km、甲陽病院へ約5.3km |
| 備考 | エレベーター、コインランドリー、ジム、カラオケルーム、図書室。 4階401号室 |
| 備考2 | 管理費42,620円/月(修繕積立金含む)、駐車場:無料41台(うち敷地外23台) |
情報更新日:2026/01/08
この物件について問い合わせる
しつこい営業は一切致しませんので、安心してお問い合わせください。
現地へのご案内手配や、ネットでは公開していない詳細情報・ご質問事項をお答えいたします。
(※ご見学前に特別にお送りする資料等はご用意しておりませんのでご了承ください)
現地へのご案内手配や、ネットでは公開していない詳細情報・ご質問事項をお答えいたします。
(※ご見学前に特別にお送りする資料等はご用意しておりませんのでご了承ください)
※掲載されている図面・データが現況と異なる場合は、現況を優先します。





















