全国 田舎暮らし物件 > 山梨県 > 南部ICから車で6分の好立地50年物件の再生プロジェクト始まる
山梨県 南部町 [住宅]
物件No.18283A
南部ICから車で6分の好立地50年物件の再生プロジェクト始まる1680万円
この物件について問い合わせるしつこい営業は一切致しませんので、安心してお問い合わせください。
現地へのご案内や、ネットでは公開していない詳細情報をお知らせします。
現地へのご案内や、ネットでは公開していない詳細情報をお知らせします。
南部町は山梨県の最南端に位置する山々に囲まれた自然豊かな町。子育て支援に力を入れているので自然に囲まれながらのんびりと子育てをしたいという移住者が多い。加えて中部横断自動車道の富沢IC~六郷ICが無料区間となっているため都市までのアクセスもよく田舎暮らしをしながら街へ気軽に遊びに行けるのも南部町の魅力だ。築50年の物件は現在フルリノベーション中である。緑豊かな自然や古民家の特徴を残しつつ新たな歴史が刻まれようとしている。自然の水が注がれた池にはカニやメダカなどが訪れる天然ビオトープで現代の暮らしにあった住みよい家と自然が共存する贅沢な空間である。
【オンライン見学はこちらから】
→ここをクリック
| 物件No. | 18283A |
|---|---|
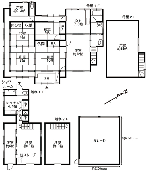
| 所在地 | 山梨県南巨摩郡南部町大和外久根 |
| 種別 | 住宅 |
| 地目 | 宅地、畑、畑、畑 |
| 地勢 | 平坦地、一部傾斜地 |
| 土地面積 | 1387.04㎡ (419.57坪) |
| 建物面積 | 129.77㎡ (39.25坪) |
| 建物構造 | 木造瓦葺2階建 |
| 築年 | 昭和50年 |
| 床面積1階 | 103.28㎡ (31.24坪) |
| 床面積2階 | 26.49㎡ (8.01坪) |
| 接道状況 | 東南側が幅約3.2mの舗装公道に接する |
| 都市計画 | 区域外 |
| 法令 | 農地法 |
| 標高 | 173m |
| 設備 | 電気、公営水道、合併浄化槽、PG |
| 交通 | 身延線内船駅より約2.4km、中部横断自動車道南部ICより約3.7km |
| 生活 | オギノキャロットへ約1.2km、ローソンへ約3.7km、病院へ約3.1km、コメリへ約3.0km、郵便局へ約2.6km、道の駅なんぶへ約3.9km |
| 備考 | 付属建物、納屋 木造亜鉛メッキ鋼板葺平屋建 36.93㎡ |
情報更新日:2025/11/27
この物件について問い合わせる
しつこい営業は一切致しませんので、安心してお問い合わせください。
現地へのご案内手配や、ネットでは公開していない詳細情報・ご質問事項をお答えいたします。
(※ご見学前に特別にお送りする資料等はご用意しておりませんのでご了承ください)
現地へのご案内手配や、ネットでは公開していない詳細情報・ご質問事項をお答えいたします。
(※ご見学前に特別にお送りする資料等はご用意しておりませんのでご了承ください)
※掲載されている図面・データが現況と異なる場合は、現況を優先します。













































