全国 田舎暮らし物件 > 埼玉県 > 都心からアクセス良し広々した和風住宅
埼玉県 入間市 [住宅]
物件No.18313A
都心からアクセス良し広々した和風住宅1200万円
この物件について問い合わせるしつこい営業は一切致しませんので、安心してお問い合わせください。
現地へのご案内や、ネットでは公開していない詳細情報をお知らせします。
現地へのご案内や、ネットでは公開していない詳細情報をお知らせします。
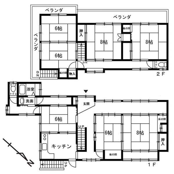
埼玉県南西部に位置する入間市は豊かな自然と市街地が調和する街で四季折々の美しい風景を楽しみながらアウトレットモールやコストコの商業施設も堪能できる贅沢な街である。所沢インターから国道463号経由をすれば約40分で都心へ行けるので、田舎暮らしをしながら東京で働くことも可能だ。物件は市街地から離れた場所に昭和41年新築、平成5年増築の建物が建つ。内装は綺麗で部屋数も多くすぐにでも家族を連れて移住する事ができる。LDKには大きいキッチンが付いているので家族や友人と一緒に料理を楽しむ事ができる開放感がある。幼稚園、小学校も近いので子育て世代には生活しやすい。
【オンライン見学はこちらから】
→ここをクリック
| 物件No. | 18313A |
|---|---|
| 所在地 | 埼玉県入間市下谷ヶ貫根道 |
| 種別 | 住宅 |
| 地目 | 宅地 |
| 地勢 | 平坦地 |
| 土地面積 | 377.88㎡ (114.3坪) |
| 建物面積 | 168.56㎡ (50.98坪) |
| 建物構造 | 木造瓦葺2階建 |
| 築年 | 昭和41年 |
| 改築年 | 平成5年 |
| 床面積1階 | 168.56㎡ (50.98坪) |
| 接道状況 | 西側が幅約6mの舗装公道に接する。北側が幅約7.6mの舗装公道に接する。 |
| 都市計画 | 区域内 市街化調整区域 |
| 用途地域 | 無指定地域 |
| 建ぺい率 | 60% |
| 容積率 | 200% |
| 法令 | 埼玉県景観条例 |
| 設備 | 電気、公営水道、単独浄化槽、PG |
| 交通 | 八高線金子駅より約2.0km、中央連絡自動車道入間ICより約15.4km |
| 生活 | ベルク飯能店へ約2.5km、セブンイレブンへ約800m、病院へ約1.4km、コストコへ約5.5km、いるまの湯へ約6.1km、役場へ約5.5km |
| 備考 | 未登記のため各階面積不明。 |
情報更新日:2026/02/16
この物件について問い合わせる
しつこい営業は一切致しませんので、安心してお問い合わせください。
現地へのご案内手配や、ネットでは公開していない詳細情報・ご質問事項をお答えいたします。
(※ご見学前に特別にお送りする資料等はご用意しておりませんのでご了承ください)
現地へのご案内手配や、ネットでは公開していない詳細情報・ご質問事項をお答えいたします。
(※ご見学前に特別にお送りする資料等はご用意しておりませんのでご了承ください)
※掲載されている図面・データが現況と異なる場合は、現況を優先します。





































