全国 田舎暮らし物件 > 福島県 > 棚倉藩の城下町で暮らす、日当たりの良い和洋折衷住宅
福島県 棚倉町 [住宅]
物件No.18355T
棚倉藩の城下町で暮らす、日当たりの良い和洋折衷住宅1250万円
この物件について問い合わせるしつこい営業は一切致しませんので、安心してお問い合わせください。
現地へのご案内や、ネットでは公開していない詳細情報をお知らせします。
現地へのご案内や、ネットでは公開していない詳細情報をお知らせします。
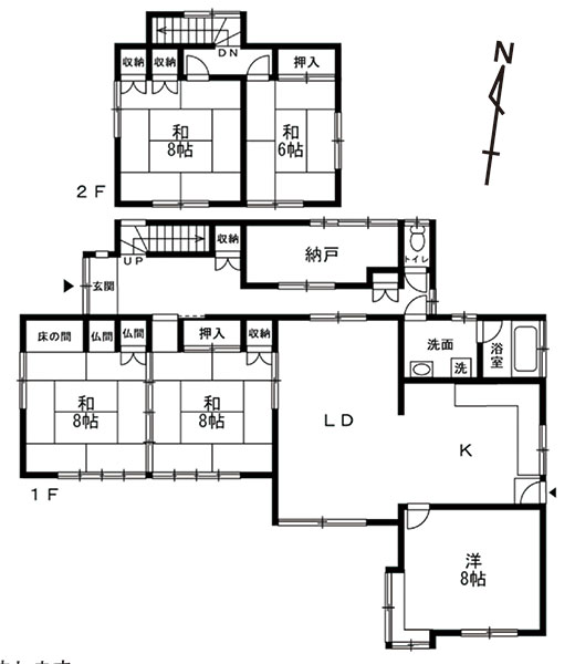
福島県棚倉町は東白川郡の中心地で、かつては棚倉藩(亀ケ城)の城下町として発展した歴史情緒を感じる街並みとなっている。中通りでは県南エリアに位置し、県内でも一年を通じて気候が温暖で、風と雪も少ないことから移住者も多い地域となっている。町中心部から鮫川村方面へ向かう道すがらの住宅地の一角にあるのが今回の物件。敷地は木造2階建の母屋、物置、カーポートのある縦列2台分の駐車場と南側の庭園がセットになっており、前面に遮る建造物がないため終日にわたり日当たりが良い。普段の買い物や駅・バス停までのアクセスも徒歩・自転車で完結出来るのは大きなアドバンテージだろう。
| 物件No. | 18355T |
|---|---|
| 所在地 | 福島県東白川郡棚倉町関口八幡沢 |
| 種別 | 住宅 |
| 地目 | 宅地 |
| 地勢 | 平坦地 |
| 土地面積 | 308.3㎡ (93.26坪) |
| 建物面積 | 146.56㎡ (44.32坪) |
| 建物構造 | 木造亜鉛メッキ鋼板葺2階建 |
| 築年 | 昭和56年 |
| 改築年 | 平成3年 |
| 床面積1階 | 115.1㎡ (34.81坪) |
| 床面積2階 | 31.46㎡ (9.51坪) |
| 接道状況 | 北西側が幅約3mの舗装公私道に接する |
| 都市計画 | 区域内 非線引区域 |
| 用途地域 | 第一種住居地域 |
| 建ぺい率 | 60% |
| 容積率 | 200% |
| 法令 | 福島県景観条例 |
| 標高 | 267m |
| 設備 | 電気、公営水道、単独浄化槽、PG |
| 交通 | 水郡線磐城棚倉駅より約1.3km、東北新幹線新白河駅より約23.9km、東北道白河スマートICより約24.7km、福島空港より約29.7km |
| 生活 | スーパーグラントマトへ約350m、セブンイレブンへ約400m、医院へ約750m、棚倉小へ約650m、棚倉中へ約1km、町役場へ約1.5km |
| 備考 | 増築部分及び物置は未登記です。 |
情報更新日:2026/01/26
この物件について問い合わせる
しつこい営業は一切致しませんので、安心してお問い合わせください。
現地へのご案内手配や、ネットでは公開していない詳細情報・ご質問事項をお答えいたします。
(※ご見学前に特別にお送りする資料等はご用意しておりませんのでご了承ください)
現地へのご案内手配や、ネットでは公開していない詳細情報・ご質問事項をお答えいたします。
(※ご見学前に特別にお送りする資料等はご用意しておりませんのでご了承ください)
※掲載されている図面・データが現況と異なる場合は、現況を優先します。



























































